АН АДРЕСА
Lilia.k-adresa@yandex.ru
Скажите продавцу, что вы нашли объявление на 156.ru
1
/
3
12 900 000 ₽
11
Южный Урал
АН АДРЕСА
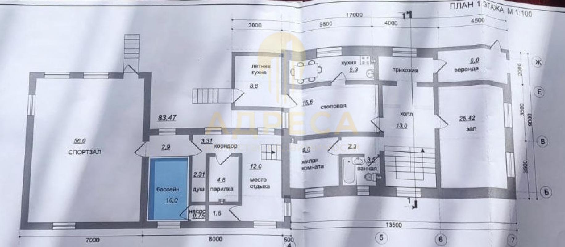
▎Ваш идеальный дом в поселке "Южный Урал"! Мечтаете о тихой и спокойной жизни за городом, но с городским комфортом? Этот просторный двухэтажный дом в поселке "Южный Урал" – идеальный вариант для вас!
▎Описание дома:
Двухэтажный дом с полуподвальным помещением:
Первый этаж:
Гостиная: Просторная и уютная, идеально подходит для теплых семейных вечеров.
Кухня-столовая: Удобное место с большим столом для праздничных обедов и душевных посиделок.
Дополнительная комната или гардеробная: Возможность адаптации под ваши нужды.
Санузел: Удобное размещение на первом и втором этажах.
Коридор: Простой и просторный, создающий атмосферу уюта.
Полуподвальное помещение: Две комнаты для развлечений, кладовая и котельная с выходом в банный комплекс – все для комфортного проживания вашей семьи.
Внутренний двор: Удобный выход из кухни, гостиной и банного комплекса для приятных прогулок и семейных посиделок в уютной беседке.
Второй этаж: Четыре комнаты:
– Детские комнаты: Созданы для счастливого детства ваших детей.
– Взрослая спальня: Место для спокойного и комфортного отдыха.
Банный комплекс: Состоит из комнаты отдыха, парной на дровах, душевой и большого бассейна.
Отдельно стоящий гараж:
На 2 автомобиля, с установленными рольставнями для защиты от непогоды.
Дополнительные преимущества:
Теплый пол по всему периметру первого этажа.
Готовность к проживанию: Дом укомплектован всей необходимой мебелью, техникой и четырьмя сплит-системами.
• Автономная канализация переливного типа: Три септика, позволяющие забыть о проблемах с отводом сточных вод.
Земельный участок: 12.5 соток, предоставляющий простор для реализации ваших идей, включая уютный сад с различными насаждениями.
Удобное расположение: Поселок "Южный Урал" находится всего в 10 км от центра города, обеспечивая легкий доступ ко всей городской инфраструктуре.
Этот шикарный дом — ваш шанс на жизнь в гармонии с природой, не отказываясь от удобств городской жизни. Не упустите возможность стать его владельцем!
ID объекта в нашей базе: 1811
Тип недвижимости
Адрес
Этажность
Площадь
Дом
Россия, Оренбургская обл, Южный Урал, ул. Пушкина, 9
2
235
ID объявления
Обновлено
Создано
Действительно до
781090
2025-11-29 06:21:28
2025-11-29 06:21:28
2026-02-27 06:21:28

1 000 000 ₽
1-комн. квартира
г Оренбург, ул Декабристов, д 1

2 500 000 ₽
3-комн. квартира
Оренбургская обл, г Гай, ул Ленина, д 24

6 000 000 ₽
Дом
Оренбургская обл, г Гай, ул Садовая

2 900 000 ₽
2-комн. квартира
Оренбургская обл, г Гай, ул Декабристов, д 10

190 ₽
Комната
Оренбургская обл, г Гай, ул Строителей, д 4
2 000 000 ₽
1-комн. квартира
Оренбургская обл, г Гай
6 000 000 ₽
Дом
Гай, ул.Садовая
800 000 ₽
2-комн. квартира
Оренбургская обл, Гайский р-н, поселок Репино, ул Школьная, д 5, кв 15

3 990 000 ₽
3-комн. квартира
Оренбургская обл, г Гай, ул Орская, д 109
9 950 000 ₽
Дом
Оренбургская обл, г Гай

5 900 000 ₽
Комната
Оренбургская обл, г Гай, ул Молодёжная, д 67

1 800 000 ₽
Дом
Гайский р-н, поселок Саверовка

5 500 000 ₽
Дом

10 000 000 ₽
Дом
Оренбургская обл, г Гай, ул Степная

3 100 000 ₽
3-комн. квартира
Оренбургская обл, г Гай, ул Войченко, д 7А

2 650 000 ₽
2-комн. квартира
Оренбургская обл, г Гай, пр-кт Победы, д 7

2 300 000 ₽
2-комн. квартира
Оренбургская обл, г Гай, ул Ленина, д 52

4 000 000 ₽
3-комн. квартира
Оренбургская обл, г Гай, Парковый пер, д 1

730 000 ₽
Дом
Гай, п.Саверовка, ул.Центральная
300 000 ₽
Комната
Оренбургская обл, г Гай, ул Ленина, д 10
9 000 000 ₽
1-комн. квартира
г Москва, ул Декабристов

1 600 000 ₽
1-комн. квартира
Оренбургская обл, г Гай, ул Молодёжная, д 6

800 000 ₽
Дом
Оренбургская обл, Гайский р-н, село Уральск, ул Нижняя, д 34, кв 1

100 ₽
3-комн. квартира
Оренбургская обл, г Гай