АН АДРЕСА
Hohlova-adresa@yandex.ru
Скажите продавцу, что вы нашли объявление на 156.ru
1
/
3
8 700 000 ₽
9
Подгородняя Покровка
АН АДРЕСА
Семейная ипотека 6%
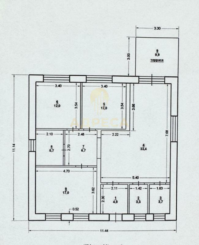
Ипотека под строительство Жилой дом 129 кв.м. Подгородняя Покровка Планировка продумана до мелочей.
-Кухня гостиная 33,4 кв.м. с выходом на террасу; -Два санузла, отдельная котельная; - Три изолированные комнаты 12 кв.м, 12 кв. м., 17 кв. м; О доме: - фундамент свайно-ростверковый; -крыша: металлочерепица; -материал стен: керамзитоблок; -терасса залита;- входная дверь с терморазрывом.Инфраструктура: - в шаговой доступности школа и детский сад; -магазины;-автошкола;-Оренбургский аграрный колледж; -Асфальтированные дороги; -Удобный выезд из поселка.Альтернативные направления: Ленина, Заречье, Соловьи, Марьино, Нежинка, Ростоши, Пригородный, Ивановка, Приуралье
ID объекта в нашей базе: 1579
Тип недвижимости
Адрес
Этажность
Площадь
Дом
Россия, Оренбургская обл, Подгородняя Покровка, ул. Российская,44
1
129
ID объявления
Обновлено
Создано
Действительно до
786435
2025-12-07 05:52:29
2025-12-07 05:52:29
2026-03-07 05:52:29
1 700 000 ₽
3-комн. квартира
г.Гай ,ул Советская 11

2 500 000 ₽
4-комн. квартира
ГАй, ул.Челябинская,д.124

2 500 000 ₽
2-комн. квартира
Оренбургская обл, г Гай, ул Спортивная, д 5

2 800 000 ₽
3-комн. квартира
Оренбургская обл, г Гай, ул Молодёжная, д 67

300 000 ₽
Земельный участок
Оренбургская обл, г Гай, ул Руденко, д 53

2 850 000 ₽
3-комн. квартира
Оренбургская обл, г Гай, мкр 8-й, д 13

3 150 000 ₽
3-комн. квартира
Оренбургская обл, г Гай, пр-кт Победы, д 15

2 650 000 ₽
3-комн. квартира
Оренбургская обл, г Гай, ул Декабристов, д 3

3 100 000 ₽
3-комн. квартира
Гай, ул. Орская 132/2

2 500 000 ₽
4-комн. квартира
Оренбургская обл, г Гай, ул Челябинская, д 124

2 300 000 ₽
Дом
Оренбургская обл, г Гай, поселок Калиновка,

1 600 000 ₽
2-комн. квартира
Оренбургская обл, г Гай, ул Коммунистическая, д 14

2 100 000 ₽
2-комн. квартира
Оренбургская обл, г Гай, ул Молодёжная, д 6
9 950 000 ₽
Дом
Оренбургская обл, г Гай
9 000 000 ₽
1-комн. квартира
г Москва, ул Декабристов

2 500 000 ₽
3-комн. квартира
Оренбургская обл, г Гай, ул Ленина, д 24

2 200 000 ₽
Помещение
Оренбургская обл, г Гай, ул Ленина, д 23

6 000 000 ₽
Дом
Оренбургская обл, г Гай, ул Садовая

1 150 000 ₽
1-комн. квартира
Оренбургская обл, г Гай, ул Октябрьская, д 58

2 650 000 ₽
2-комн. квартира
Оренбургская обл, г Гай, пр-кт Победы, д 7
800 000 ₽
2-комн. квартира
Оренбургская обл, Гайский р-н, поселок Репино, ул Школьная, д 5, кв 15

190 ₽
Комната
Оренбургская обл, г Гай, ул Строителей, д 4

1 750 000 ₽
2-комн. квартира
Оренбургская обл, г Гай, ул Пионерская, д 8

1 500 000 ₽
1-комн. квартира
Гай, ул.Молодежная, д.71А