Юлия
juliya-056@mail.ru
Скажите продавцу, что вы нашли объявление на 156.ru
1
/
3
4 000 000 ₽
63
Оренбург
Юлия
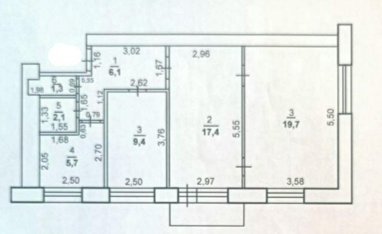
Продам трехкомнатную квартиру в центре города. Кирпичный дом, второй этаж.Комнаты смежно-изолированные. Совмещённый санузел.Погреб во дворе дома будет приятным бонусом новому собственнику. Один взрослый собственник. Долгов и обременений нет.Остановка в трёх минутах ходьбы;Детский сад №109;Школы №39 и 46;Спортивная школа олимпийского резерва №1 им. Н.С. Гейтца;Стрелково-спортивный клуб;Медицинский университет;Корпус № 5 педагогического университета;Оренбургский институт путей и сообщения;Магнит, аптека, оптика, Альфа-страхование - расположены в этом доме;Три парка - Тополя, Перовского, Ленина;Рынок "Локомотив".Квартира свободна от проживающих.Если Вам понравился этот объект, но Ваша недвижимость не продана, окажем помощь в реализации.
Юридическое сопровождение и помощь в одобрение ипотеки при покупке данного объекта бесплатно.
Просмотр по предварительной договоренности.
ID объекта в нашей базе: 132
Тип недвижимости
Адрес
Этажность
Этаж
Площадь
3-комн. квартира
Россия, Оренбургская обл, Оренбург, проезд. Коммунаров,24
5
2
60.7
ID объявления
Обновлено
Создано
Действительно до
797875
2025-12-24 09:56:54
2025-12-24 09:56:54
2026-03-24 09:56:54

3 100 000 ₽
3-комн. квартира
Оренбургская обл, г Гай, ул Войченко, д 7А

800 000 ₽
Дом
Оренбургская обл, Гайский р-н, село Уральск, ул Нижняя, д 34, кв 1
2 500 000 ₽
2-комн. квартира
пр.Победы 14А

1 150 000 ₽
1-комн. квартира
Оренбургская обл, г Гай, ул Октябрьская, д 58

2 900 000 ₽
3-комн. квартира
Оренбургская обл, г Гай, ул Орская, д 111А

1 200 000 ₽
Помещение

1 750 000 ₽
2-комн. квартира
Оренбургская обл, г Гай, ул Пионерская, д 8

2 000 000 ₽
1-комн. квартира
Оренбургская обл, г Гай

2 300 000 ₽
2-комн. квартира
Оренбургская обл, г Гай, ул Ленина, д 52

2 500 000 ₽
2-комн. квартира
Оренбургская обл, г Гай, ул Спортивная, д 5

1 000 000 ₽
1-комн. квартира
г Оренбург, ул Декабристов, д 1

2 800 000 ₽
3-комн. квартира
Оренбургская обл, г Гай, ул Молодёжная, д 67

2 500 000 ₽
4-комн. квартира
Оренбургская обл, г Гай, ул Челябинская, д 124

договорная
Дом
Оренбургская обл, г Гай

160 ₽
Гараж
Оренбургская обл, г Гай ГСК 16

2 650 000 ₽
3-комн. квартира
Оренбургская обл, г Гай, ул Декабристов, д 3

2 650 000 ₽
2-комн. квартира
Оренбургская обл, г Гай, пр-кт Победы, д 7

3 900 000 ₽
3-комн. квартира
Оренбургская обл, г Гай, ул Орская, д 109

2 800 000 ₽
3-комн. квартира
Оренбургская обл, г Гай, ул Молодёжная, д 63

3 000 000 ₽
Дом
Оренбургская обл, Гайский р-н, поселок Ириклинский, ул Солнечная

2 500 000 ₽
4-комн. квартира
ГАй, ул.Челябинская,д.124

2 100 000 ₽
Дом
Оренбургская обл, Гайский р-н, село Камейкино, ул Степная

1 500 000 ₽
1-комн. квартира
Гай, ул.Молодежная, д.71А

1 700 000 ₽
1-комн. квартира
Оренбургская обл, г Гай, ул Ленина, д 22