АН АДРЕСА
Lilia.k-adresa@yandex.ru
Скажите продавцу, что вы нашли объявление на 156.ru
1
/
3
3 850 000 ₽
19
Оренбург
АН АДРЕСА
ПРЕДЛАГАЕМ ВАШЕМУ ВНИМАНИЮ ПРОСТОРНУЮ И УЮТНУЮ ДВУХКОМНАТНУЮ КВАРТИРУ!
КВАРТИРА С НОВЫМ ОТЛИЧНЫМ РЕМОНТОМ, ЧТО ПОЗВОЛЯЕТ ЗАЕХАТЬ и ЖИТЬ!
О КВАРТИРЕ:
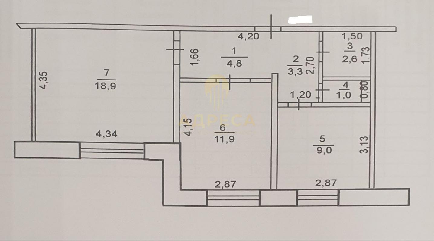
Общая площадь квартиры – 51.5 кв.м Очень хорошая планировка – квадратный просторный зал площадью 18.9 кв.м,, светлая спальня 11,9 кв.м., и уютная кухня 9 кв.м. В квартире выполнен качественный ремонт. Во всех комнатах пластиковые окна. С/У раздельный в кафеле. Качественные деревянные двери. Полы с подогревом! Из мебели остается вместительный угловой кухонный гарнитур. Сплит система. Коммуникации все центральные. Квартира очень теплая. Соседи очень хорошие и дружные.
ИНФРАСТРУКТУРА:
—д/с 106.
—СОШ №11
—Магазины Пятерочка, Магнит, Красное/белое, аптеки и др.;
Остановка общественного транспорта в шаговой доступности: маршруты: 78Н (62), 23.Рассмотрим все формы расчета: ипотека, сертификаты, наличный и безналичный расчет.
- Поможем купить в ипотеку! Узнавайте по телефону подробные условия.
Юридическое сопровождение сделки.
Если вам понравился этот вариант, но у вас ещё не продана своя недвижимость, предложите нам, возможно у нас прямо сейчас есть на неё покупатель.
ID объекта в нашей базе: 1394
Тип недвижимости
Адрес
Этажность
Этаж
Площадь
2-комн. квартира
Россия, Оренбургская обл, Оренбург, ул. Авиационная,20
5
1
51.5
ID объявления
Обновлено
Создано
Действительно до
816355
2026-01-23 05:32:31
2026-01-23 05:32:31
2026-04-23 05:32:31

2 300 000 ₽
Дом
Оренбургская обл, г Гай, поселок Калиновка,

1 600 000 ₽
2-комн. квартира
Оренбургская обл, г Гай, ул Советская, д 12А

10 000 000 ₽
Дом
Оренбургская обл, г Гай, ул Степная

3 900 000 ₽
3-комн. квартира
Оренбургская обл, г Гай, ул Орская, д 109
4 500 000 ₽
Помещение
80 000 ₽
Гараж
Гай, ГСК-15

1 450 000 ₽
1-комн. квартира
Оренбургская обл, г Гай, ул Молодёжная, д 6
950 ₽
1-комн. квартира
Декабристов

3 100 000 ₽
3-комн. квартира
Оренбургская обл, г Гай, ул Войченко, д 7А

2 300 000 ₽
3-комн. квартира
Оренбургская обл, г Гай, ул Октябрьская, д 58

4 000 000 ₽
3-комн. квартира
Оренбургская обл, г Гай, Октябрьский пер, д 4

2 900 000 ₽
3-комн. квартира
Оренбургская обл, г Гай, ул Молодёжная, д 81А

2 500 000 ₽
4-комн. квартира
ГАй, ул.Челябинская,д.124

2 000 000 ₽
1-комн. квартира
Оренбургская обл, г Гай

1 000 000 ₽
1-комн. квартира
г Оренбург, ул Декабристов, д 1

2 100 000 ₽
2-комн. квартира
Оренбургская обл, г Гай, Парковый пер, д 1

4 100 000 ₽
3-комн. квартира
Оренбургская обл, г Гай, Парковый пер, д 1
800 000 ₽
2-комн. квартира
Оренбургская обл, Гайский р-н, поселок Репино, ул Школьная, д 5, кв 15

2 550 000 ₽
2-комн. квартира
Оренбургская обл, г Гай, ул Молодёжная, д 63

5 500 000 ₽
Помещение
Гай

2 700 000 ₽
3-комн. квартира
Оренбургская обл, г Гай, ул Ленина, д 34

2 650 000 ₽
3-комн. квартира
Оренбургская обл, г Гай, ул Декабристов, д 3

2 100 000 ₽
2-комн. квартира
Оренбургская обл, г Гай, ул Октябрьская, д 36

2 500 000 ₽
2-комн. квартира
Оренбургская обл, г Гай, ул Спортивная, д 5