Юлия
juliya-056@mail.ru
Скажите продавцу, что вы нашли объявление на 156.ru
1
/
3
4 000 000 ₽
28
Оренбург
Юлия
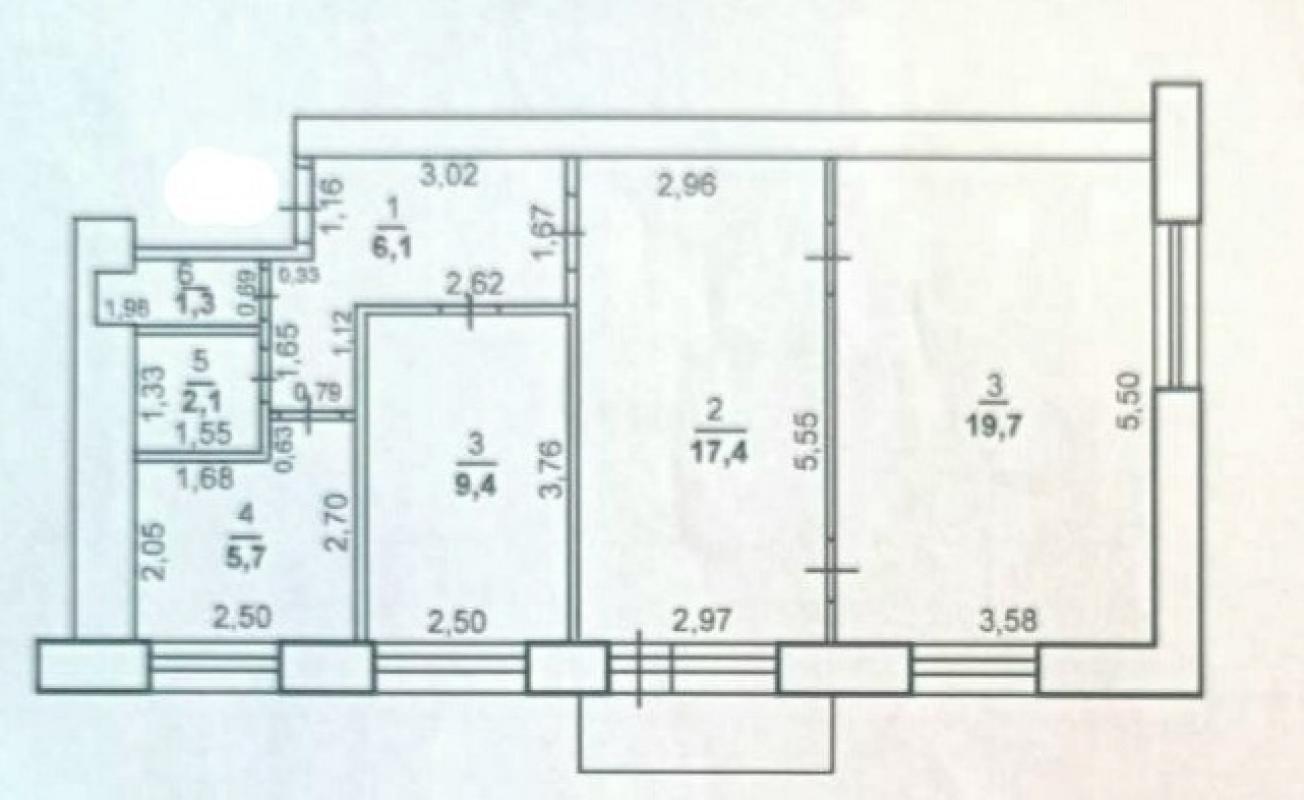
Продам трехкомнатную квартиру в центре города. Кирпичный дом, второй этаж.Комнаты смежно-изолированные. Совмещённый санузел.Погреб во дворе дома будет приятным бонусом новому собственнику. Один взрослый собственник. Долгов и обременений нет.Остановка в трёх минутах ходьбы;Детский сад №109;Школы №39 и 46;Спортивная школа олимпийского резерва №1 им. Н.С. Гейтца;Стрелково-спортивный клуб;Медицинский университет;Корпус № 5 педагогического университета;Оренбургский институт путей и сообщения;Магнит, аптека, оптика, Альфа-страхование - расположены в этом доме;Три парка - Тополя, Перовского, Ленина;Рынок "Локомотив".Квартира свободна от проживающих.Если Вам понравился этот объект, но Ваша недвижимость не продана, окажем помощь в реализации.
Юридическое сопровождение и помощь в одобрение ипотеки при покупке данного объекта бесплатно.
Просмотр по предварительной договоренности.
ID объекта в нашей базе: 132
Тип недвижимости
Адрес
Этажность
Этаж
Площадь
3-комн. квартира
Россия, Оренбургская обл, Оренбург, проезд. Коммунаров,24
5
2
60.7
ID объявления
Обновлено
Создано
Действительно до
849835
2026-03-24 05:57:29
2026-03-24 05:57:29
2026-06-22 05:57:29

2 650 000 ₽
3-комн. квартира
Оренбургская обл, г Гай, ул Декабристов, д 3

договорная

1 750 000 ₽
2-комн. квартира
Оренбургская обл, г Гай, ул Войченко, д 1
3 200 000 ₽
3-комн. квартира
Оренбургская обл, г Гай, ул Строителей, д 2

2 200 000 ₽
2-комн. квартира
Декабристов 7

4 100 000 ₽
3-комн. квартира
Оренбургская обл, г Гай, Парковый пер, д 1

3 650 000 ₽
3-комн. квартира
Оренбургская обл, г Гай, Октябрьский пер, д 5

2 200 000 ₽
Помещение
Оренбургская обл, г Гай, ул Ленина, д 23

800 000 ₽
Дом
Оренбургская обл, Гайский р-н, село Уральск, ул Нижняя, д 34, кв 1
1 800 000 ₽
Дом
Оренбургская обл, Гайский р-н, село Камейкино, ул Целинная, д 21/2

2 100 000 ₽
2-комн. квартира
Оренбургская обл, г Гай, ул Молодёжная, д 6

4 500 000 ₽
Дом
Оренбургская обл, г Гай

2 750 000 ₽
3-комн. квартира

550 000 ₽
Комната
Оренбургская обл, г Гай, ул Декабристов, д 1

4 000 000 ₽
4-комн. квартира
Оренбургская обл, г Гай, ул Войченко, д 1

1 500 000 ₽
2-комн. квартира
Оренбургская обл, г Гай, ул Советская, д 15А

10 000 000 ₽
Дом
Оренбургская обл, г Гай, ул Степная

1 600 000 ₽
2-комн. квартира
Оренбургская обл, г Гай, ул Пионерская, д 8

1 400 000 ₽
1-комн. квартира
Гай, ул.Молодежная, д.71А

2 300 000 ₽
Дом
Оренбургская обл, г Гай, поселок Калиновка,
280 000 ₽
Гараж
Оренбургская обл, г Гай, ул Молодёжная, д 39

3 100 000 ₽
3-комн. квартира
Оренбургская обл, г Гай, ул Войченко, д 7А
2 800 000 ₽
2-комн. квартира
Оренбургская обл, г Гай, ул Войченко, д 20

2 850 000 ₽
3-комн. квартира
Оренбургская обл, г Гай, мкр 8-й, д 13