АН АДРЕСА
Hohlova-adresa@yandex.ru
Скажите продавцу, что вы нашли объявление на 156.ru
1
/
3
8 700 000 ₽
15
Подгородняя Покровка
АН АДРЕСА
Семейная ипотека 6%
Ипотека под строительство Жилой дом 129 кв.м. Подгородняя Покровка Планировка продумана до мелочей.
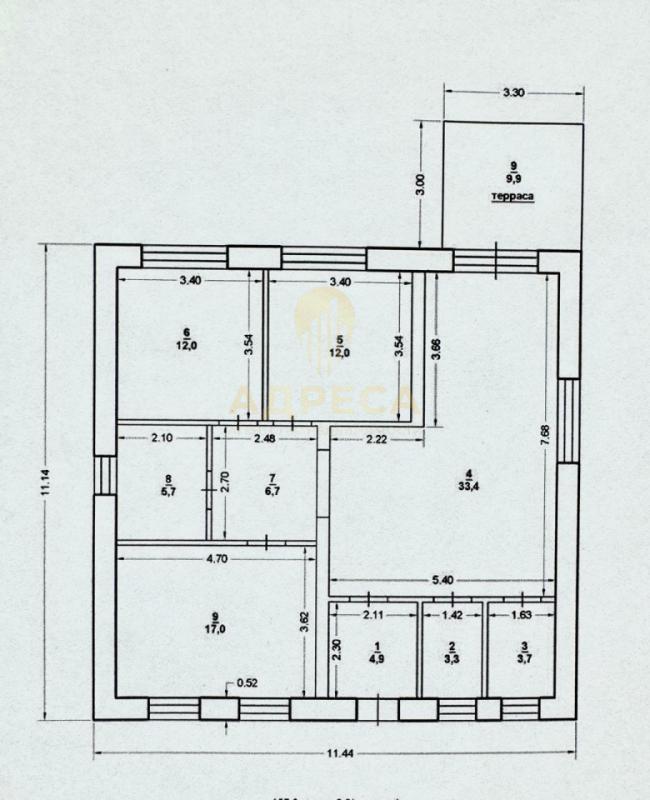
-Кухня гостиная 33,4 кв.м. с выходом на террасу; -Два санузла, отдельная котельная; - Три изолированные комнаты 12 кв.м, 12 кв. м., 17 кв. м; О доме: - фундамент свайно-ростверковый; -крыша: металлочерепица; -материал стен: керамзитоблок; -терасса залита;- входная дверь с терморазрывом.Инфраструктура: - в шаговой доступности школа и детский сад; -магазины;-автошкола;-Оренбургский аграрный колледж; -Асфальтированные дороги; -Удобный выезд из поселка.Альтернативные направления: Ленина, Заречье, Соловьи, Марьино, Нежинка, Ростоши, Пригородный, Ивановка, Приуралье
ID объекта в нашей базе: 1579
Тип недвижимости
Адрес
Этажность
Площадь
Дом
Россия, Оренбургская обл, Подгородняя Покровка, ул. Российская,44
1
129
ID объявления
Обновлено
Создано
Действительно до
752138
2025-10-19 05:58:55
2025-10-19 05:58:55
2026-01-17 05:58:55
1 600 000 ₽
2-комн. квартира
Оренбургская обл, г Гай, ул Коммунистическая, д 14
3 000 000 ₽
Дом
Оренбургская обл, Гайский р-н, поселок Ириклинский, ул Солнечная
2 650 000 ₽
2-комн. квартира
Оренбургская обл, г Гай, пр-кт Победы, д 7
2 100 000 ₽
2-комн. квартира
Оренбургская обл, г Гай, ул Молодёжная, д 6
1 100 000 ₽
1-комн. квартира
Оренбургская обл, г Гай, ул Днепропетровская, д 1
1 900 000 ₽
2-комн. квартира
Оренбургская обл, г Гай, ул Войченко, д 1
2 000 000 ₽
2-комн. квартира
Оренбургская обл, г Гай, ул Молодёжная, д 55А
2 100 000 ₽
Дом
Оренбургская обл, Гайский р-н, село Камейкино, ул Степная
10 000 000 ₽
Дом
Оренбургская обл, г Гай
2 500 000 ₽
4-комн. квартира
Оренбургская обл, г Гай, ул Челябинская, д 124
1 700 000 ₽
3-комн. квартира
г.Гай ,ул Советская 11
2 200 000 ₽
Помещение
Оренбургская обл, г Гай, ул Ленина, д 23
1 500 000 ₽
2-комн. квартира
Оренбургская обл, г Гай, ул Советская, д 15А
100 ₽
3-комн. квартира
Оренбургская обл, г Гай
2 800 000 ₽
3-комн. квартира
Оренбургская обл, г Гай, ул Молодёжная, д 63
1 300 000 ₽
Дом
Оренбургская обл, Гайский р-н, село Уральск
3 900 000 ₽
3-комн. квартира
Оренбургская обл, г Гай, ул Орская, д 132/2
300 000 ₽
Комната
Оренбургская обл, г Гай, ул Ленина, д 10
1 500 000 ₽
1-комн. квартира
Гай, ул.Молодежная, д.71А
5 500 000 ₽
Помещение
Гай
3 999 000 ₽
3-комн. квартира
Оренбургская обл, г Гай, ул Орская, д 132/2
2 800 000 ₽
3-комн. квартира
Оренбургская обл, г Гай, ул Молодёжная, д 67
1 200 000 ₽
1-комн. квартира
г Гай, ул Ленина, д 37
2 500 000 ₽
3-комн. квартира
Оренбургская обл, г Гай, ул Ленина, д 24