Юлия
juliya-056@mail.ru
Скажите продавцу, что вы нашли объявление на 156.ru
1
/
3
4 000 000 ₽
49
Оренбург
Юлия
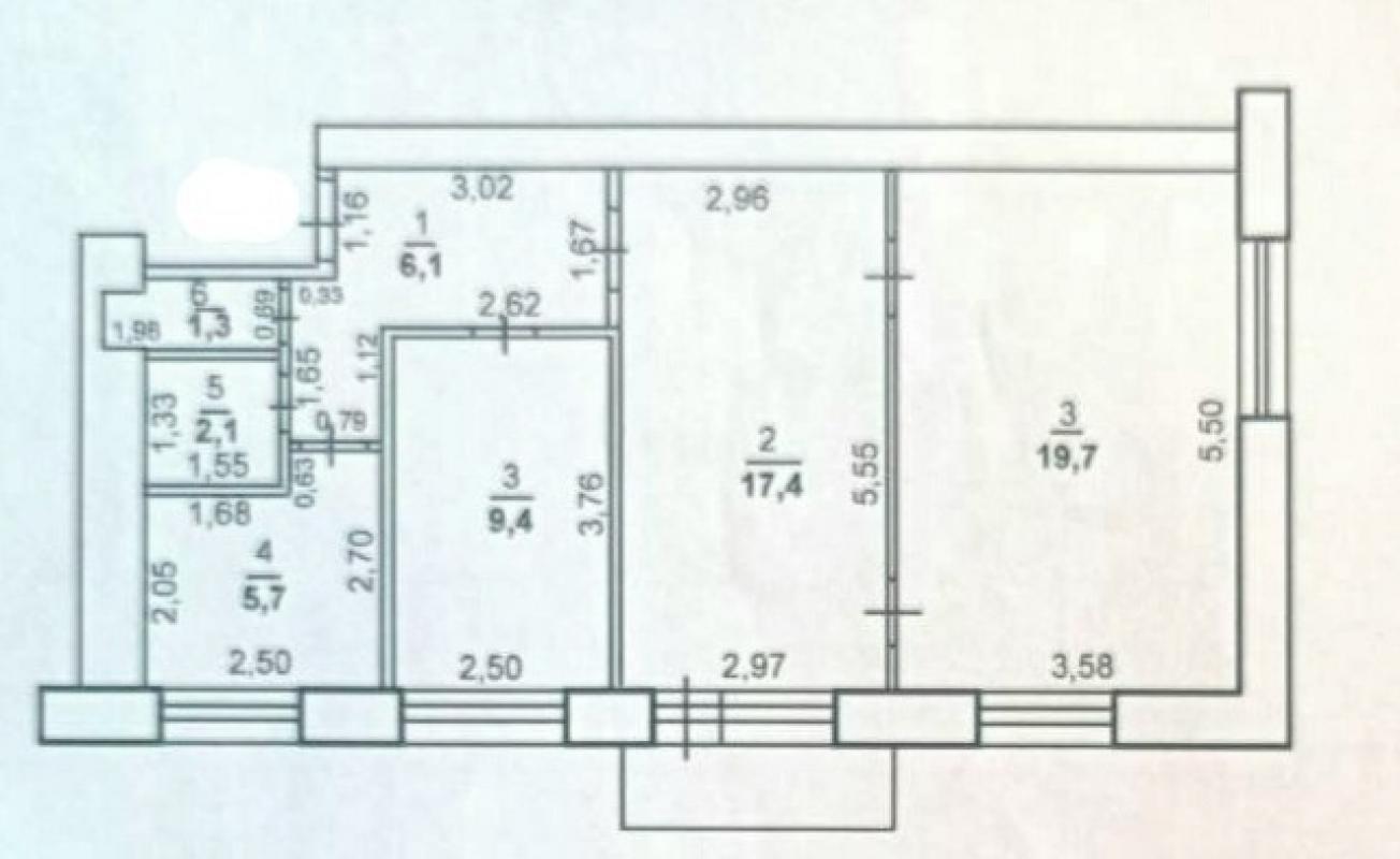
Продам трехкомнатную квартиру в центре города. Кирпичный дом, второй этаж.Комнаты смежно-изолированные. Совмещённый санузел.Погреб во дворе дома будет приятным бонусом новому собственнику. Один взрослый собственник. Долгов и обременений нет.Остановка в трёх минутах ходьбы;Детский сад №109;Школы №39 и 46;Спортивная школа олимпийского резерва №1 им. Н.С. Гейтца;Стрелково-спортивный клуб;Медицинский университет;Корпус № 5 педагогического университета;Оренбургский институт путей и сообщения;Магнит, аптека, оптика, Альфа-страхование - расположены в этом доме;Три парка - Тополя, Перовского, Ленина;Рынок "Локомотив".Квартира свободна от проживающих.Если Вам понравился этот объект, но Ваша недвижимость не продана, окажем помощь в реализации.
Юридическое сопровождение и помощь в одобрение ипотеки при покупке данного объекта бесплатно.
Просмотр по предварительной договоренности.
ID объекта в нашей базе: 132
Тип недвижимости
Адрес
Этажность
Этаж
Площадь
3-комн. квартира
Россия, Оренбургская обл, Оренбург, проезд. Коммунаров,24
5
2
60.7
ID объявления
Обновлено
Создано
Действительно до
752282
2025-10-19 06:23:08
2025-10-19 06:23:08
2026-01-17 06:23:08
2 650 000 ₽
3-комн. квартира
Оренбургская обл, г Гай, ул Декабристов, д 3
2 100 000 ₽
2-комн. квартира
Оренбургская обл, г Гай, ул Молодёжная, д 6
300 000 ₽
Земельный участок
Оренбургская обл, г Гай, ул Руденко, д 53
2 100 000 ₽
Дом
Оренбургская обл, Гайский р-н, село Камейкино, ул Степная
10 000 000 ₽
Дом
Оренбургская обл, г Гай
1 600 000 ₽
1-комн. квартира
Оренбургская обл, г Гай, ул Молодёжная, д 6
5 900 000 ₽
Комната
Оренбургская обл, г Гай, ул Молодёжная, д 67
2 990 000 ₽
2-комн. квартира
Оренбургская обл, г Гай, ул Ленина, д 56
2 800 000 ₽
3-комн. квартира
Оренбургская обл, г Гай, ул Молодёжная, д 63
2 800 000 ₽
3-комн. квартира
Оренбургская обл, г Гай, ул Молодёжная, д 67
2 650 000 ₽
2-комн. квартира
Оренбургская обл, г Гай, пр-кт Победы, д 7
299 000 ₽
Комната
Оренбургская обл, г Гай, ул Декабристов, д 7А
3 999 000 ₽
3-комн. квартира
Оренбургская обл, г Гай, ул Орская, д 132/2
3 900 000 ₽
3-комн. квартира
Оренбургская обл, г Гай, ул Орская, д 132/2
6 000 000 ₽
Дом
5 500 000 ₽
Помещение
Гай
6 000 000 ₽
Дом
Гай, ул.Садовая
2 000 000 ₽
1-комн. квартира
Оренбургская обл, г Гай
1 300 000 ₽
Дом
Оренбургская обл, Гайский р-н, село Уральск
800 000 ₽
Дом
Оренбургская обл, Гайский р-н, село Уральск, ул Нижняя, д 34, кв 1
4 500 000 ₽
Помещение
4 000 000 ₽
Дом
Оренбургская обл, г Гай, ул Елшанская
300 000 ₽
Комната
Оренбургская обл, г Гай, ул Ленина, д 10
100 ₽
3-комн. квартира
Оренбургская обл, г Гай